VIEW CATALOG


PRODUCT SEARCH


QUICK QUESTIONS

Name:
Email(Optional):
State/Region:
Phone:
Product Description
Verification Code:
This Is CAPTCHA Image

To verify content, please enter in the characters in the image above (Case sensitive)

WEIZEL FACTS

Weizel presently serves 1,755 correctional and prison facilities in North America 2006 Incarceration Facts

U.S.A: 2.2 Million inmates in approx. 7,000 facilities.

Canada: 38,000 inmates in approx. 450 facilities

Weizel presently serves 2,454 hospitals in North America


TOOLS & SERVICES

Currency Converter
Form Center
How-To: Request Quote
Pricing Policy



SecuringCosmos.com

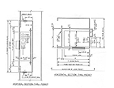
Upgrading from an old Folger Adam 120 Series Lock to a new FA 120 Series Lock
(FA 120E Lock or FA 120M Lock)

What does Weizel require to get your retrofit underway?

  • Your existing frame gauge
  • Is the existing cover plate mounted stop side or hinge side
  • What is the existing frame profile dimensions?
.
Step 1
Purchase the new 120 series lock and the following retrofit frame parts
(FA 120E Lock or FA 120M Lock)

 

   
120 Series Lock   Part 1 (click to enlarge)   Part 2 (click to enlarge)


Step 2
Installing lock into retrofit frame

 
Part 1 (click to enlarge)   Part 2 (click to enlarge)

Step 3
Install new lock and retrofit frame into existing opening

 
Part 1(click to enlarge)